Product

Issue : 52

yado local FI | 北欧フィンランドの山小屋を住宅に落とし込んだモデル

世界各地の宿に学び、独自の視点で再編集した住宅デザイン「yado local」。このyado localから生まれたのが、北欧フィンランドの山小屋をもとにした家「yado local FI(以下、yado FI)」だ。ここにあるのは、自然と調和し、心穏やかな時間を過ごすための空間。yado FIに込められた、フィンランドのエッセンスとそこに流れる時間を紹介する。

無料デジタルカタログは、こちら からお申し込みください。

北欧フィンランドに流れる空気を
再現したyado FI

新たな土地に訪れたときに感じる、高揚感や居心地のよさ。そんな旅の喜びを、日常でも感じられるようにする……そんな思想で生まれたのが、住宅ブランド「yado」だ。

旅先で得られる感覚を分解し、家というフォーマットで再設計する。そんなアプローチによって“泊まるように暮らす”というあり方が可能になる。

yadoの一連のプロジェクトの中で「yado local」は、世界中の宿からインスピレーションを受けて生まれる住宅レーベル。今回は「yado local」のラインナップのひとつyado FIから、“泊まるように暮らす”家のあり方を紐解いていく。

年輪を重ねるように
時の経過とともに育っていく木の風合い

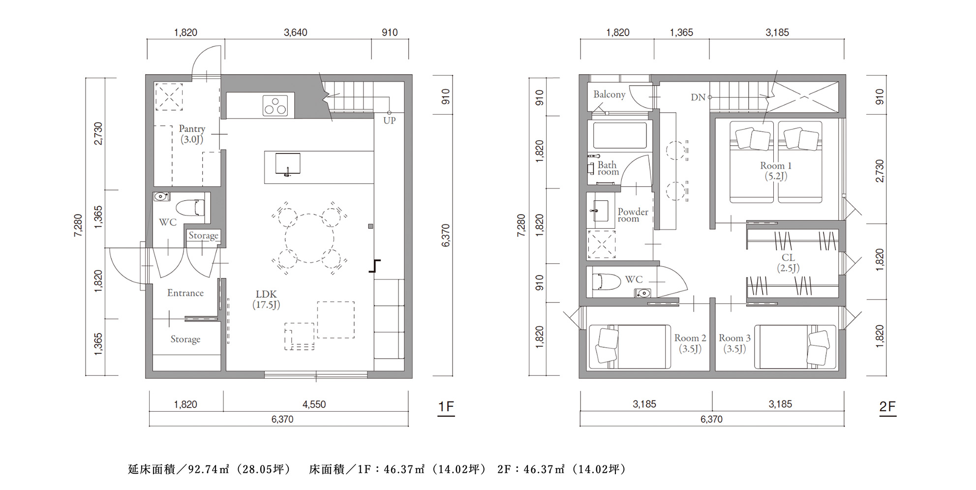
yado FIのモチーフとなっているのは、北欧フィンランドの山小屋だ。その佇まいは、まるで湖畔に佇むログハウス。外観を印象づける切妻屋根や縦張りの木目からも、そんな現地の空気を感じられる。

天井や床材、建具など、空間の至るところで用いられている木材。無塗装のまま仕上げられた、この木材は、時の経過によって美しく表情が変化していく。

ダイニングで家族と食事を味わっている時間、縁側で来客との語らいを楽しむ時間、造作のソファでひとりで心穏やかに過ごす時間……まるで年輪を重ねるかのごとく、この家で過ごす人の記憶を刻みながら、空間に散りばめられた木の風合いは育っていく。

ノイズとストレスを排し、
純度の高い心地よさを

喧噪を忘れさせる静けさと開放感が同居しているyado FI。コンパクトながらもストレスのない生活動線、徹底的にノイズを取り払った空間設計……そうした細部へのこだわりが、yado FIならではの居心地のよさを生み出している。

生活感のあるサニタリーを玄関周辺と2階に配置することで、多くの時間を過ごすリビングは、ノイズレスで新鮮な非日常を味わえる空間へと変わる。

 

一歩リビングに入ると、視界に飛び込むのは大開口からの眺めだ。インターホンなどのスイッチを別室に集約したり、造作ソファの下に収納を設けたり。細やかなディティールへの工夫によって、大開口によってもたらされる心地よさの純度は高まる。

日々季節の移ろいを確かめ、時計の針が少しだけゆっくりと動いているような感覚に浸る……フィンランドを訪れたときに味わえるような空気が、ここにはある。

深い充足感とともに一日を終える

2階は、3つの寝室を含むプライベートスペースに。

 

モノを一元的に収納できるファミリークロークを近くに配置することで生まれるゆとり。そして、穏やかな表情の木材と彩度を落としたグレーの壁紙によって宿る落ち着いた雰囲気……そうした空間に包まれながら、一日を終えていく。

この静かで確かな温もりは、住む人の人生に深い充足感をもたらしてくれることだろう。

山小屋をモチーフにしたミニマルなデザインは、自然と調和する。フィンランドの湖畔に流れる時間のように、ただ静かな幸福感が空間に満ちていく。

yadoの商品ラインナップが入ったデジタルカタログを、無料配布しています。

こちら よりお問い合わせください。

Staff Credit

Written by Takumi Kobayashi

Photographed by toha

  • Information

    この記事に関連する商品

    世界中の宿からインスピレーションを受けて生まれる住宅モデル「yado local|FI」。

    詳細はこちら。

About

泊まるように暮らす

Living as if you are staying here.

食べる、寝る、入浴する。
家と宿、それらがたとえ行為としては同じでも、旅先の宿に豊かさを感じるのはなぜなのか?
そんなひとつの問いから、yadoは生まれました。

家に居ながらにして、時間の移ろいや風景の心地よさを感じられる空間。
収納の徹底的な工夫による、ノイズのない心地よい余白……。
新鮮な高揚と圧倒的なくつろぎが同居する旅のような時間を日常にも。

個人住宅を通して、そんな日々をより身近に実現します。