Product
Issue : 29
Roofscape inspired by makina nakijin | 軒でつながり、自然と一体となる家
旅する過程で出逢った感動や発見。それらを紐解き、住居という形に落とし込んだ“泊まるように暮らす家”「yado house」。そんなyado houseより、沖縄今帰仁村にある予約の取れないプライベートヴィラ「MAKINA NAKIJIN」とコラボした住宅「Roofscape inspired by makina nakijin」が誕生。そこにあるのは、循環し続ける自然とのおおらかな共生を楽しむ“自然と溶け合う暮らし”。Roofscapeが実現する全く新しい住宅の形を、そこでの暮らしと共に紹介する。
“自然と溶け合う暮らし”を実現する
「Roofscape inspired by makina nakijin」誕生。
“泊まるように暮らす”をコンセプトにした住宅ブランド「yado」は、ホテルやライフスタイルブランドとコラボレーションした住宅モデルを「yado gallery」として展開。
その第一弾モデルが、手つかずの大自然が広がる沖縄今帰仁の一棟貸しヴィラ「MAKINA NAKIJIN」からインスピレーションを受け、yadoが独自の設計ルールを加え制作した「Roofscape inspired by makina nakijin」だ。
もとはオーナーの住まいとして建てられたMAKINA NAKIJIN。オーナー自身が旅先で感じたという、“ありのままの大自然とともにある暮らしの豊かさ”を建築に落とし込んだ、唯一無二の空間が特徴的だ。沖縄の豊かな自然を全身で感じられるその場所には、季節ごとに訪れるファンも多いという。
“泊まれる美術館”という異名があるように、建築と自然、調度品とアート作品が、美しく空間に溶け合う姿も特徴の一つだ。
沖縄県今帰仁村の森羅万象が織りなす美しい自然に溶け込む建築は、グッドデザイン賞も受賞。
(photo by OOKI JINGU)
「日常生活を送る住宅にも、旅先で過ごすような心地よさを」。
今回、そんな両者に共通する思いからホテルと住宅ブランドのコラボレーションが実現した。
プライベートの個室が、大きな屋根で1つにつながる、
新しい形の“3LDK”住宅。
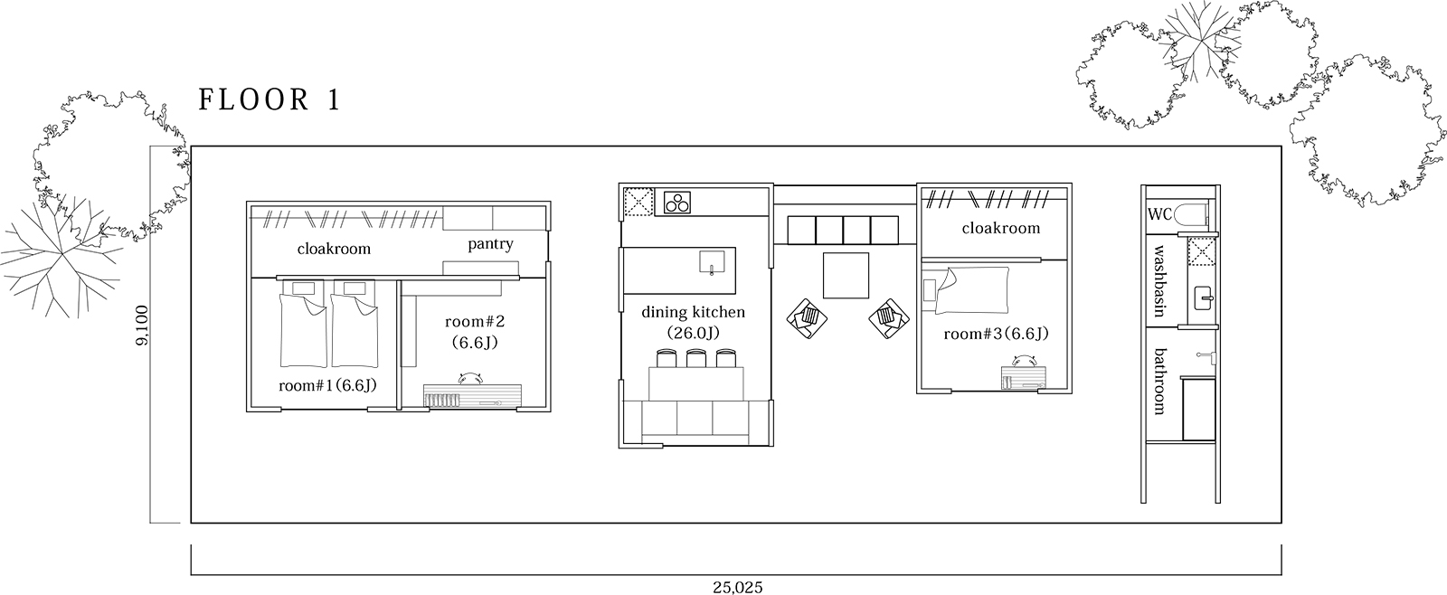
Roofscape最大の特徴は、それぞれの部屋が個室として独立し、軒で繋がるその間取りにある。室内廊下という概念はなく、個室と個室を移動する際には必ず外を経由するのだ。
長い軒には、時間や季節の移ろいに呼応し光と影を映し出すだけでなく、雨や風をほどよく避けながら、快適に暮らせる工夫も隠されている。MAKINA NAKIJINを印象づける屋根と通路からインスパイアされたこの考え方は、「Roofscape」を捉える大きな要素となっている。
個室は、ダイニングキッチンと水回りのほか、クロークが備え付けられた部屋が全部で三部屋。
例えば夫婦二人暮らしであれば、主寝室と書斎とゲストルーム、四人家族であれば、二つの寝室とプレイルームのように、家族構成や用途に合わせて暮らし方をデザインしやすいのも嬉しい。

朝起きてシャワーを浴びにバスルームへ向かうとき、書斎で仕事を終えランチを食べにダイニングへ移動するとき…。日常の様々な行動の合間で、自然を感じられる瞬間があることは、きっと暮らしに心地よい変化を運んでくれるだろう。日々を通して、循環し続ける自然と、おおらかな共生が楽しめるのだ。
余白が引き立たせる、インテリアの美しさ
ホテルのような暮らしを住宅で実現するRoofscapeは、暮らしやすさにも妥協しない。各個室に備え付けられたクロークはもちろん、2階には合計約12畳のロフトスペースが。キャンプ道具などのレジャー用品や季節外れのアイテムを収納しておくには十分なスペースだ。
ファミリークロークやロフトなどの収納スペースを確保することで、生活感というノイズは抑えられ、見た目には徹底した余白の空間が広がる。
だからこそ、美術館やギャラリーのように、そこに佇むインテリアが有機的に映える。
MAKINA NAKIJINといえば、椅子好きのオーナーが集めた「ピエール・ジャンヌレ」の椅子が、主役としての存在感を放つ空間美が印象的だ。椅子を住まいの主役にする「MAKINA NAKIJIN」のオーナー同様、好きな家具を配置して、外の自然とインテリアの新しい関係性を楽しみたい。
季節や時間と共に移ろう景色と共にある暮らし
建物と建物をつなぐ、一見、廊下のような空間にあるリビングルーム。前方と後方には壁がなく、通りぬける風を感じながら、家族や友人と団らんの時間が流れていく。
個室においても、景色を切り抜く窓は、まるで額縁のよう。朝昼夜に変化する景色が絵画のように展開するよう設計されている。それらもこの住まいを象徴する、美しさの物差しだ。
本当の贅沢は、自然と共生すること。
Roofscapeで、内と外が溶け合う旅先のような暮らしを。
天気が良い日は外で食事して、お酒を楽しみ、自然のサイクルと共に暮らていく。寒い日も暑い日も、その不安定なリズムこそ五感で享受しながら、長期旅行者のように住まいを楽しむ。
人間ではなく、自然が主役で、私たちはそこに寄り添う。「Roofscape inspired by makina nakijin」から生まれる暮らしは、まさに共生という贅沢だ。
Staff Credit
Written by Tokiko Nitta
Photographed by Kazumasa Harada
-
Information
この記事に関連する商品
yadoとmakina nakijinのコラボレーションで生まれた住宅「Roofscape inspired by makina nakijin」。
詳細はこちら。